



















Realitná kancelária Eclipsereal Vám ponúka na predaj polyfunkčnú budovu v aktuálnom stave rozostavania (uzatvorená hrubá stavba) vo veľmi výhodnej lokalite, v samom centre obce Veľké Leváre. Nehnuteľnosť sa nachádza na rohu Závodskej a Novej ulice, priamo v obchodnej zóne obce. V blízkom okolí sa nachádzajú objekty občianskej vybavenosti, obchody a autobusová zastávka.
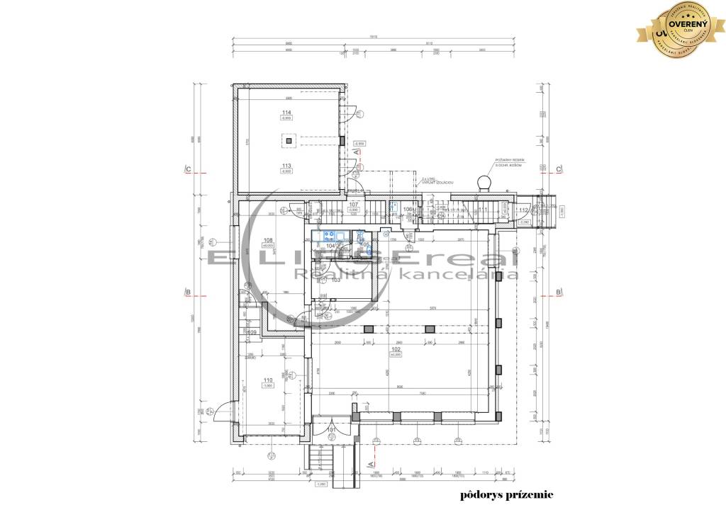
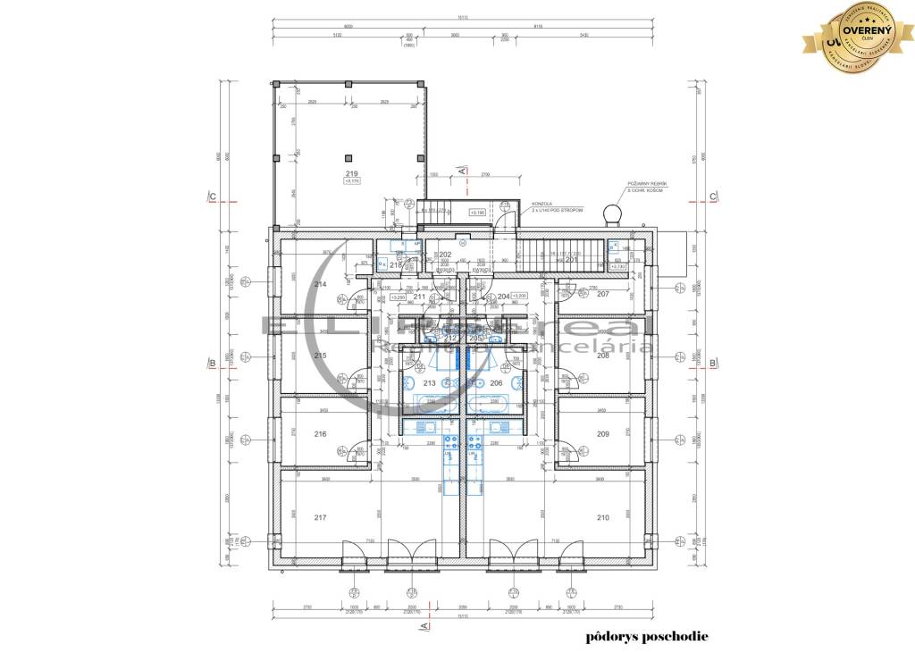
Jedná sa o samostatne stojacu dvojpodlažnú polyfunkčnú budovu s podpivničením. Na prízemí je situovaný obchodný a skladový priestor s príslušenstvom a na poschodí sa nachádzajú dva samostatné 4-izbové byty.
Polyfunkčný dom je postavený na pozemku s výmerou 480 m2 a je vyhotovený z kvalitných stavebných materiálov, ktoré v plnej miere zodpovedajú predpísaným statickým ako aj konštrukčným požiadavkám. Stavebné práce sú vyhotovené v nadpriemernej kvalite. Zastavaná plocha je o výmere cca 140 m2. Celková úžitková plocha predstavuje 398,3 m2.
Polyfunkčný objekt má výborné dispozičné riešenie:
- prízemie: centrálne situovaná vstupná hala s priestorovo bohatým obchodným priestorom, kanceláriou, kuchynkou, toaletou, technickou miestnosťou, skladovým priestorom a schodiskom spolu o výmere 120,67 m2,
- poschodie: schodisko a spoločná chodba s vchodom na spoločnú vonkajšiu terasu o výmere cca 40 m2 a do dvoch samostatných 4-izbových bytov (byt č. 1 o výmere 77,06 m2 a byt č. 2 o výmere 82,96 m2),
- pivničné priestory: schodisko a chodba, ktorou sa dostávame do troch pivničných skladových priestorov spolu o výmere 46,88 m2.
Funkčnú náplň polyfunkčného domu tvorí obchodný a skladový priestor, kancelária a bývanie rozložené do dvoch samostatných bytových jednotiek.
Objekt je z hlavnej uličnej čelnej strany sprístupnený z úrovne verejného chodníka cez centrálne situovanú vstupnú halu prepojenú s obchodným priestorom a zo zadnej strany cez vstupnú bránu k zadnej chodbe so schodiskom.
Zásobovanie je riešené z bočnej ulice zo zadnej časti objektu. Z tejto zadnej strany je situované schodisko sprístupňujúce všetky úrovne objektu. V zadnej časti je situovaná garáž pre dve osobné autá spolu o výmere 30,73 m2.
Inžinierske siete: voda, elektrina, plyn, kanalizácia, pevná telekomunikačná sieť
Objekt má k dispozícii 8 vlastných parkovacích miest. Ďalšia možnosť parkovania osobných automobilov v okolí polyfunkčného objektu je na verejnom parkovisku situovanom v blízkosti polyfunkčného objektu.
Nehnuteľnosť je svojim umiestnením a technicko-konštrukčným vyhotovením určená pre viaceré využitie – pre obchod, služby, administratívu a bývanie.
Vo Veľkých Levároch sa nachádza kompletná občianska vybavenosť, Základná škola a Materská škola, zdravotné stredisko, lekáreň, pošta a kompletná sieť služieb. Okrem individuálnej dopravy je tu možnosť využívania pravidelnej autobusovej ako aj železničnej dopravy, taxislužby (autobusová zastávka je v tesnej blízkosti objektu a železničná stanica je vo vzdialenosti cca 2 km). Vzdialenosť od okresného mesta Malacky je 8 km a od Bratislavy 45 km.
Na túto nehnuteľnosť nie je v súčasnosti vypracovaný energetický certifikát.
Informácie o nehnuteľnosti majú informatívny charakter a môžu podliehať zmenám.
Cena polyfunkčnej budovy v aktuálnom stave rozostavania vo výbornej lokalite obce Veľké Leváre s dobrou dostupnosťou do okresného mesta Malacky je 475.000,- eur vrátane provízie realitnej kancelárie.
V prípade Vášho záujmu ma kontaktujte prosím mailom: renataduffekova@gmail.com alebo telefonicky: 0914 777 812
S vybavením hypotekárneho úveru Vám rada pomôže naša finančná poradkyňa Dorota Duffeková, mobil: 0904 400 316, mail: dorota.duffekova@gmail.com
© Text a fotografie podliehajú autorským právam a sú majetkom realitnej kancelárie Eclipsereal s. r. o.
Všetky ostatné ponuky realitnej kancelárie si môžete pozrieť na www.eclipsereal.sk
Realitná kancelária Eclipsereal s. r. o. je členom Združenia realitných kancelárií Slovenska – www.zrks.sk
V prípade našej spolupráce:
- neplatíte poplatky spojené s predajom nehnuteľnosti,
- hradíme: právny servis – spracovanie rezervačnej zmluvy, kúpno-predajnej zmluvy, návrhu na vklad do katastra, poplatky za výpis z listu vlastníctva, poplatky za podpisy u notára na kúpnych zmluvách a základný správny poplatok za návrh na vklad do katastra nehnuteľností,
- bezplatne ponúkame služby hypotekárneho špecialistu, ktorý Vám vyjedná výhodnejšie podmienky platenia Vášho hypotekárneho úveru,
- zabezpečíme znalca, v prípade potreby geodeta,
- zabezpečíme bezplatný prepis dodávateľov energií z pôvodného odberateľa na nového odberateľa,
- v prípade potreby predaja Vašej nehnuteľnosti Vám radi pomôžeme,
- zabezpečíme služby interiérového a exteriérového architekta,
- vyriešime za Vás kompletný servis pohodlne a bezpečne so zárukou diskrétnosti.
475.000,- €
vrátane provízie
Slovensko
Malacky
Veľké Leváre
Budova
predaj
vrátane provízie
prízemie
1
12
480 m²
398.3 m²
aktívne
áno - separovaný
verejný vodovod
230/400V
áno
áno
áno
40 m²
46.88 m²
áno - 2 autá
vlastné vyhradené
áno
Zmiešané
plastové
